



Blumatica UNI 10200
Contabilizzazione del calore, ripartizione delle spese condominiali e termoregolazione
Descrizione
Per i servizi di climatizzazione invernale, estiva, acqua calda sanitaria, ventilazione ed altri usi e progettazione dell’impianto di termoregolazione.
- Semplicità d'uso: sempre guidato nell'utilizzo del software!
- Flessibilità: gestisci situazioni impiantistiche complesse!
- Guida all'inserimento dei dati: giusta interpretazione delle specifiche tecniche!
Perchè sceglierlo?
Contabilizzazione del calore per qualsiasi tipologia di condominio: più fabbricati, unità immobiliari con differenti destinazioni d’uso, presenza di locali ad uso collettivo e unità distaccate.
È possibile gestire differenti tipologie di contabilizzazione (diretta o indiretta) per ciascuna unità immobiliare nonché la presenza di un unico contatore di calore centralizzato o di più contatori posti sulle mandate ai singoli edifici (alla partenza, all’arrivo, punto di diramazione).
In particolare, per ciascun servizio, sono previste le seguenti tipologie di contabilizzazione:
- Climatizzazione invernale: contatori di calore diretti, contatori di calore indiretti e ripartitori (con possibilità di considera “l’energia per unità di ripartizione [kWh]”)
- ACS: contatore di calore (per sola ACS o per ACS+Riscaldamento) e contatori volumetrici
- Climatizzazione estiva: contatori di calore
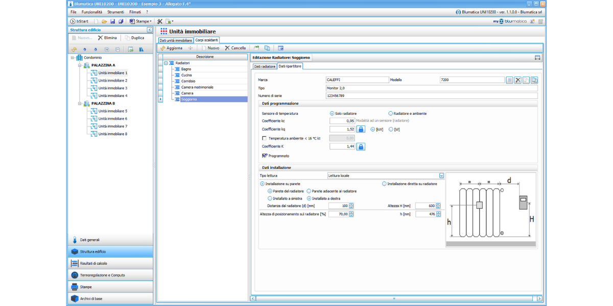
Per ogni singolo ambiente è possibile calcolare le potenze termiche dei corpi scaldanti (secondo il metodo dimensionale previsto dalla UNI 10200 o il metodo analitico della UNI EN 442-2) e definire le caratteristiche di diversi componenti: contatori, ripartitori, valvole termostatiche, detentori e testine termostatiche.
Formulazione del prospetto previsionale di ripartizione delle spese (in base ai fabbisogni teorici) e dei prospetti consuntivi stagionali (in base ai consumi effettivi).
Il software consente di stimare il consumo involontario in modo semplificato o analitico, secondo quanto prescritto dalla UNI 10200.
Inoltre è possibile ripartire la spesa utilizzando la metodologia semplificata (deroga) prevista dal D. Lgs. 102/14 (così come modificato dal D. Lgs. 141/16).
Progetto dell’impianto di termoregolazione per calcolare le bande proporzionali o i gradi di preregolazione delle valvole termostatiche, con rappresentazione grafica sotto forma di istogramma.
Definiti i parametri di progetto e le caratteristiche dell’impianto originale, è possibile verificare i dati idraulici e calcolare i parametri necessari per l’adeguamento della pompa di circolazione in funzione di portata e prevalenza.
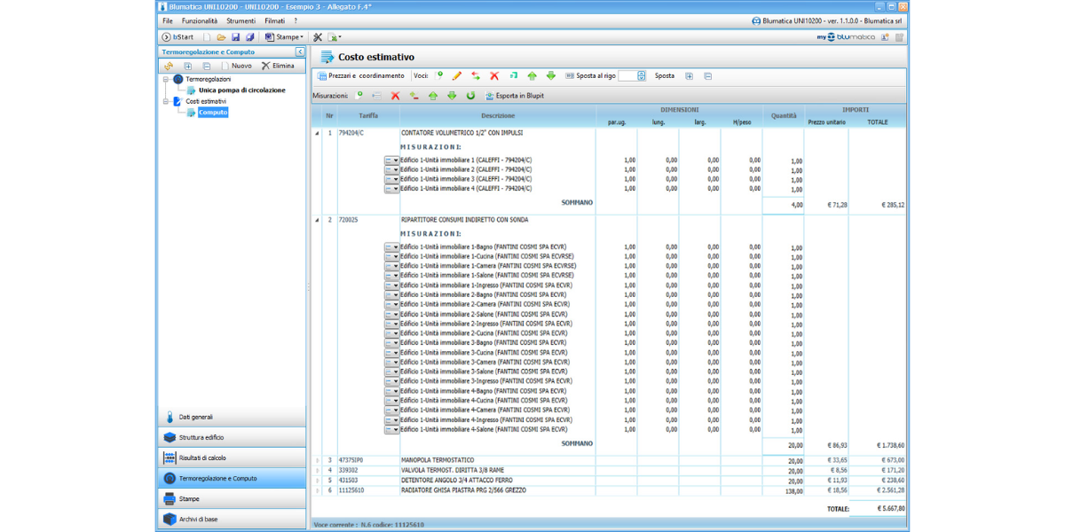
Computo metrico dei componenti dell’impianto: mediante un editor dedicato è possibile generare in automatico il computo metrico dei componenti dell’impianto (valvole, contatori, ripartitori, pompe, testine termostatiche, generatori, ecc.).
Blumatica offre una vasta gamma di prezzari e listini, scaricabili dal seguente link: www.blumatica.it/prezzari-listini/
Blumatica Pitagora è inoltre disponibile gratuitamente. Per il download gratuito clicca qui
Integrazione con il software Blumatica Energy:
la maggior parte dei dati energetici necessari per la ripartizione delle spese è desunta direttamente da un lavoro realizzato con Blumatica Energy.
Importazione da file .csv sia della struttura del condominio (edifici, unità immobiliari) e relative caratteristiche (fabbisogni, radiatori, valvole, detentori, ripartitori, ecc.) sia delle letture dei ripartitori e contatori.
Archivi interni, completamente personalizzabili, relativi a:
radiatori, valvole (termostatica con e senza preregolazione, manuale, detentore), contatori diretti (volumetrici, di calore) e indiretti (ripartitori e contatori di calore conformi alle UNI 9019 e UNI/TR 11388), generatori, ecc.
Il word processor integrato è perfettamente compatibile con i formati più usati: DOC, DOCX, RTF, restituendo documenti la cui formattazione è impeccabile e garantita con qualsiasi altro software:
- Prospetto previsionale e a consuntivo di ripartizione delle spese
- Prospetto millesimale riassuntivo
- Certificato di potenza termica installata nelle singole unità immobiliari
- Prospetto riassuntivo delle prestazioni energetiche dell’edificio
- Relazione tecnica del progetto dell’impianto di termoregolazione
- Computo metrico dei componenti dell’impianto
- Rendicontazione stagionale singola unità immobiliare (bolletta)
- Distinta componenti
- Relazione tecnica asseverata (deroga D. Lgs. 141/16)
- Prospetto descrittivo dell’impianto di contabilizzazione
Caratteristiche tecniche
Requisiti Minimi di Sistema \ UTILIZZO E PROTEZIONE SOFTWARE
Hardware
- CPU: 2 GHz Dual Core
- RAM : 2 GB
- Hardisk : 6 GB (per installazioni full)
Sistemi Operativi supportati
- Microsoft® Windows® 7 SP1;
- Microsoft® Windows® 8.1;
- Microsoft® Windows® 10;
- Microsoft® Windows® 11.
NOTA GENERALE: E’ possibile utilizzare i prodotti Blumatica su Personal Mac Intel-based con OS X Leopard (10.5) o successivi, attraverso l’uso di virtualizzatori quali VMWare, Parallels, Virtual Box o Boot Camp con i sistemi operativi Windows (come sopra indicati). Non è supportata l’attivazione tramite dispositivi di protezione USB. Il corretto funzionamento del software è vincolato alla qualità dell'ambiente Microsoft virtualizzato ed alla quantità di risorse (RAM, HDD e CPU) dedicate che comunque dovranno rispettare i requisiti minimi previsti dallo specifico prodotto Blumatica. I marchi citati sono da ritenersi proprietà dei legittimi proprietari.
UTILIZZO E PROTEZIONE SOFTWARE
I software vengono concessi in licenza d’uso su singolo PC per volta. Al fine di limitare l’utilizzo non autorizzato da parte di terzi, tutti i software sono dotati di un sistema di protezione che richiede il rilascio di un codice di attivazione da parte di Blumatica. Non è possibile ottenere ulteriori codici se non disinstallando/disattivando il software dal precedente PC.
In alternativa, è possibile acquistare delle licenze aggiuntive oppure utilizzare il seguente dispositivo di protezione hardware:
- SecurKey - Utilizzi il software previo inserimento della chiave. Puoi installare il software su "n" PC ma utilizzarlo solo dove è inserita la chiave.





















Documentazione disponibile
Video correlati
